




Sekundarstufenzentrum Burghalde Baden, Wettbewerb 6. Preis
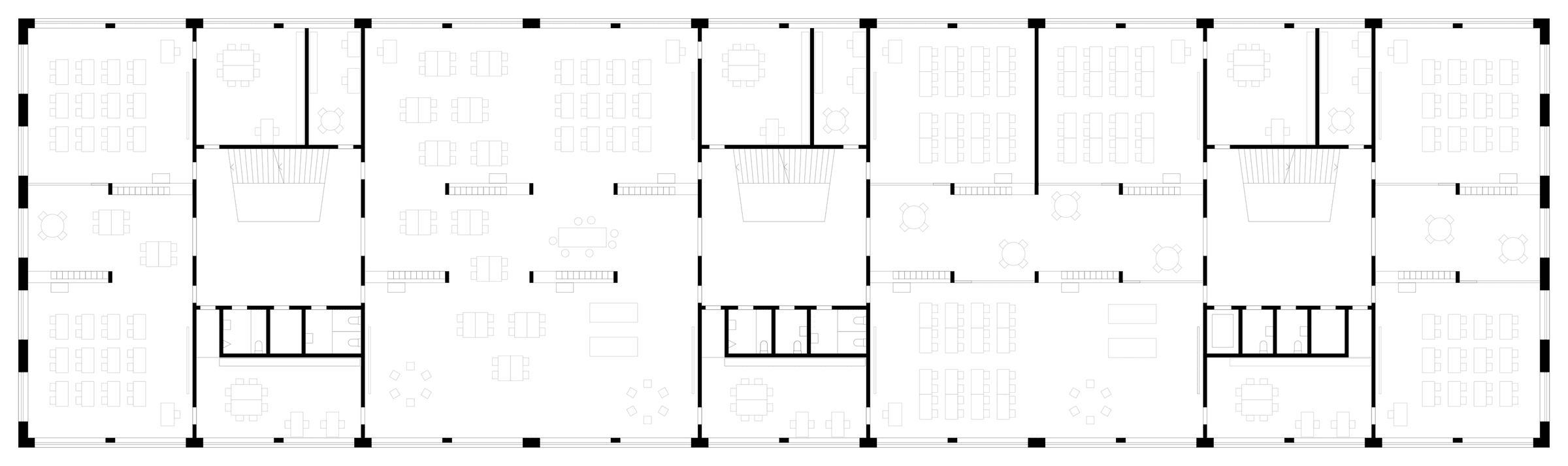
In der historischen Parkanlage der Villa Burghalde in Baden sind die bestehenden Schulgebäude zu einem neuen Sekundarstufenzentrum zusammenzuführen, bzw. zu erweitern.Das vorgefundene städtebauliche Konzept der horizontal in der Topographie liegenden Baukörper wird aufgenommen und mit der Setzung der zwei neuen langgestreckten Schulhäuser weiterentwickelt. Die Umgebungsgestaltung macht sich dabei die topographischen Gegebenheiten zu Nutzen und führt als verbindendes Element Terrassenrampen ein.Die beiden Neubauten öffnen sich über die gesamte Gebäudelänge mit einer Arkade zur Hauptterrasse und nehmen in ihren Erdgeschossen die allgemeinen Nutzungen Mensa, Lehrer, Bibliothek und Schulleitung auf. In den Obergeschossen sind die Klassenzimmer untergebracht: Ein grosszügiges innen liegendes Treppenhaus erschliesst pro Geschoss jeweils eine Lerneinheit von vier Zimmern mit Gruppen- und Vorbereitungsräumen. Dank der Entfluchtung aller Räume direkt in das Treppenhaus sind die breiten Korridore als multifunktionale Aufenthalts- und Arbeitszonen nutzbar. Der Sockelbau des westlichen Neubaues nimmt die Dreifach-Sporthalle sowie die Hauswirtschaftsräume auf. Im bestehenden Schulhaus werden die Werk-, Naturwissenschafts-, PC- und Musikräume untergebracht.
Wettbewerb 2013
- — Team
- — Bauherrschaft
- — Wettbewerb
- — Standort
- — Landschaftsarchitekt
- — Bauingenieur
mit Beat Jeaggli
Stadt Baden
selektiver Wettbewerb
5400 Baden
Haag Landschaftsarchitektur GmbH
Büro Thomas Boyle + Partner AG