





1/6
Erweiterung Chelenalphütte SAC, Wettbewerb
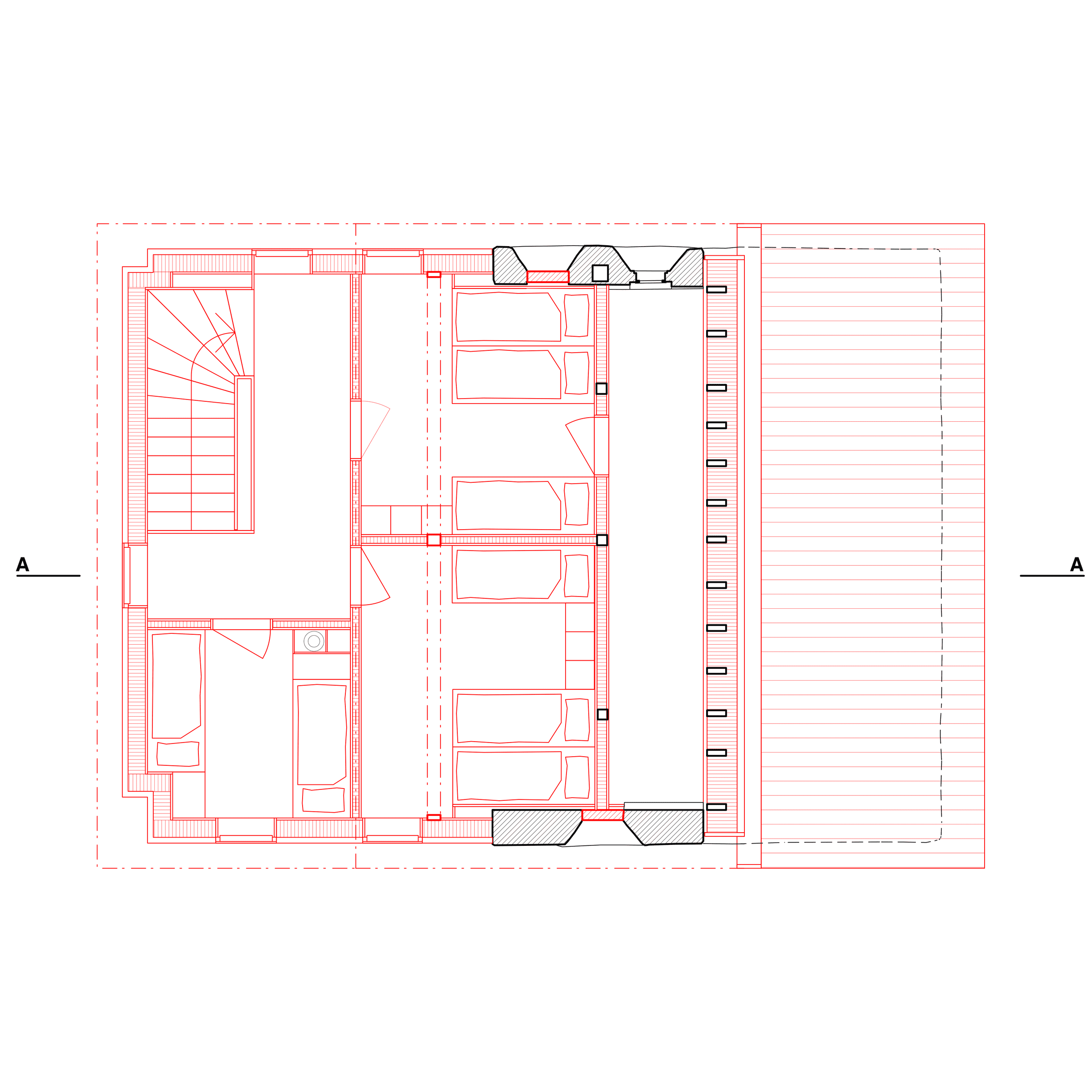
Die Chelenalphütte soll erstmals seit 1990 für die nächsten 25–30 Jahre ertüchtigt werden. Im Fokus stehen heutige Sicherheitsstandards, Komfortansprüche sowie Sanierungsmassnahmen in den Bereichen Feuchte-, Wärme- und Schallschutz und Gebäudetechnik. Dei Hütte wird auch künftig mit 42 Schlafplätzen betrieben.
Aus den gestellten Anforderungen leitet sich das einfache Erweiterungskonzept mit durchgehender Vertikalerschliessung in einem kleinen westseitigen Anbau sowie einer partiellen Aufstockung ab. Dabei wird die Ursprünglichkeit der einfachen Schutzbehausung aus den 1920er Jahren mit der präzise gesetzten Erweiterung akzentuiert.
Wettbewerb 2025
- — Bauherrschaft
- — Wettbewerb
- — Standort
SAC Sektion Aarau
selektiver Wettbewerb
Göscheneralp