















Umbau Telefonzentrale Füsslistrasse Zürich
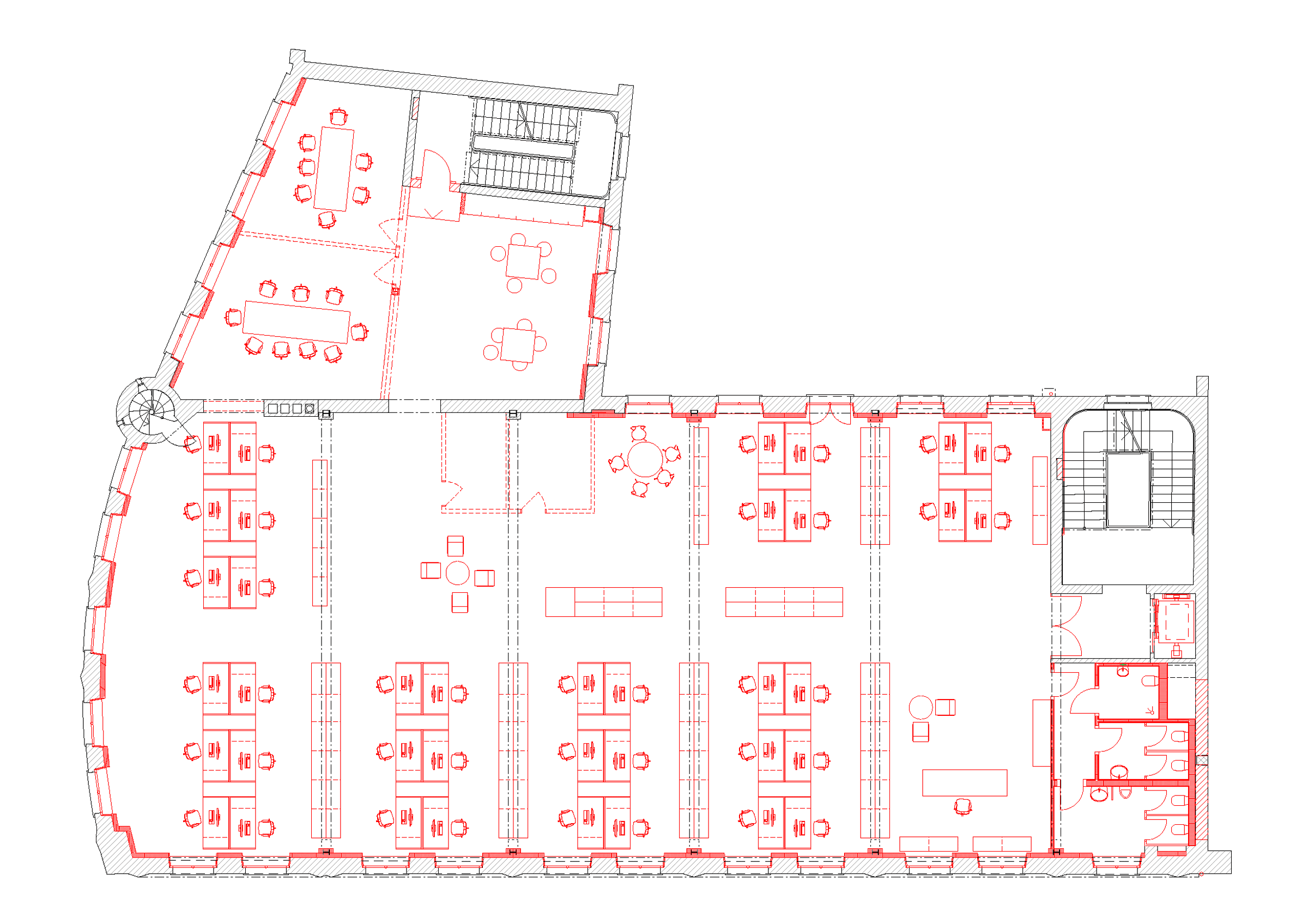
Die ehemalige Telefonzentrale an der Füsslistrasse wurde 1925 von den Architekten Pfleghard & Haefeli erbaut und steht unter Denkmalschutz. Einst beherbergte dieses Infrastrukturgebäude eine Automatenzentrale für bis zu 30'000 Telefonanschlüsse, einige Ladenlokale sowie einen öffentlichen Telefonsaal im Erdgeschoss. Das Herzstück des Gebäudes ist der einstige Wählersaal im zweiten Obergeschoss, welches dank einer Bogenkonstruktion im Dach- und dritten Obergeschoss stützenfrei ausgebildet ist.
Im Stadtraum wird der Infrastrukturbau durch die geschwungene Fassadenflucht mit Eckturm entlang der Sihlstrasse und der überhohen Geschossigkeit als prägnanter Baukörper wahrgenommen, auch wenn seine äussere Erscheinung, dem ursprünglichen Zweck entsprechend, eher zurückhaltend ausfällt. Das Gebäude wurde in den vergangenen Jahrzehnte mehrmals umgebaut und soll nun nach einer Gesamtsanierung als zeitgemässes Geschäftshaus genutzt werden. Das Erscheinungsbild wird auf Basis der ursprünglichen Materialisierung und Farbigkeit erneuert, das Sockelgeschoss aufgewertet und das Dachgeschoss mit Lukarnen ergänzt.
Fertigstellung 2024
- — Bauherrschaft
- — Auftragsart
- — Standort
- — Projektstatus
- — Leistungsumfang
- — Baumanagement
- — Bauingenieur
- — HLK
- — Sanitärplanung
- — Elektroplanung
- — Bauphysik
- — Signaletik
- — Kunst am Bau (Vestibül)
- — Fotografie
PSP Real Estate AG
Direktauftrag
8001 Zürich
Realisierung 2023-2024
Studie, Projektierung, Ausführungsplanung
Bühler & Oettli Baumanagement AG
Synaxis AG
Meierhans + Partner AG
Dex & Sinis AG
Elprom AG
Raumanzug GmbH
Bureau Mia / Studio Kevin Högger
CKÖ
Frédéric Muller